欢迎进入浏阳德锦教学设备制造有限公司!
栏目分类
解决方案
18773197118
一、系统概述
风洞测试段是风洞实验室的核心部分,用于模拟和测试风力机在不同风速、风向下的发电性能和气动性能。风洞测试段可以准确控制流场及其环境因素,并能实时捕获风速、风压、风流量、风轮转速、风轮转矩、电机功率、偏航角度、流场温度、流场湿度等数据。风洞测试段与原机保持相同的圆形截面,配有传感装置、电控系统、监控系统、支架和偏航调节机构。该风洞测试段将支持不同风速、不同偏航角度下,不同种类、不同翼型的风力机“功率-风速”曲线测试实验。
二、系统结构
2.1总体结构
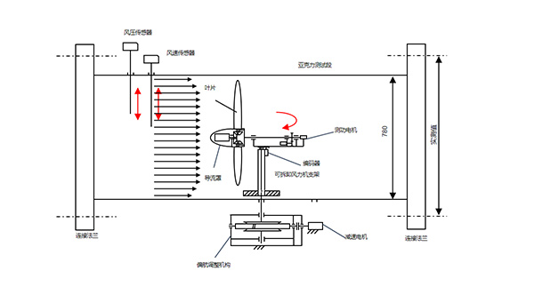
风洞测试段由圆形亚克力洞体、进口法兰、出口法兰、水平轴支架、垂直轴支架、风速传感器、风压传感器、温湿度传感器、测功电机、绝对值编码器、偏航调节机构、减速电机等部分组成。风洞测试段原理如图1所示(仅以水平轴为例)。
在风洞测试段内设有可拆卸风力机支架,配有标准风力机连接法兰,可用于连接水平轴风力机或垂直轴风力机。
(1)安装水平轴风力机
如图1所示,可拆卸风力机支架顶端安装有水平轴风力机。风力机的叶轮部分支持用户更换不同翼型风力机叶片,支持用户实施叶片桨距角调节和偏航角度调节。用户通过风洞主机系统调节风洞内空气流量,通过上述传感器感知风速、风压、温度、湿度及其变化,从而形成流场控制闭环。
用户通过测试段控制系统调节叶片桨距角和风轮朝向,从而形成风力机的不同运行工况,并通过测功电机测得叶轮捕获的风功率,测得风轮轴的转速和转矩,通过绝对值编码器测得风力机偏航角度。上述实时测量结果均发送到上位机监控系统,生成测试数据和测试曲线。
风力机机舱尾端安装有测功电机,用于实时测量叶轮在不同风速条件下吸收的风功率。

图1风洞测试段结构图(水平轴)

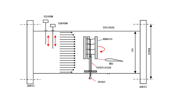
图2风洞测试段结构图(垂直轴)
(2)安装垂直轴风力机
如图2所示,可拆卸风力机支架顶端安装有垂直轴风力机。垂直轴风力机的叶轮部分支持用户更换不同翼型的叶片,叶片安装完成后,即处于更好桨距角。由于垂直轴风力机不存在偏航调节问题,因此偏航驱动机构和绝对值编码器拆除。为了测量垂直轴风力机吸收到的风功率,在可拆卸风力机支架的底端,通过法兰安装测功电机。此外,用户可通过风洞主机系统调节风洞内空气流量,通过上述传感器感知风速、风压、温度、湿度及其变化,从而形成流场控制闭环,从而形成风力机的外部环境条件,并通过测功电机测得叶轮捕获的风功率,测得叶轮轴的转速和转矩。上述实时测量结果均发送到上位机监控系统,生成测试数据和测试曲线。
2.2洞体
测试段洞体的截面为圆柱形,洞体采用10mm厚亚克力板材加工而成,内壁光滑平整以减小层流和湍流边界层的长度和厚度,保证测试段内的流场得到充分发展,保持均匀、恒速恒压。此外,为了降低支架、电缆、传感器对流场影响,洞体开孔采用密封结构,风力机也采用上风向结构。
2.3进风口
进风口位于测试段洞体的一侧,通过负压引流实现空气进入,并安装有整流格栅,既可避免异物进入测试段,也可使流畅保持稳定均匀。进风口与前序结构用圆形法兰连接,并增加密封垫,以确保不稳定流进入。
2.4出风口
出风口位于测试段洞体的另一端,从风力机下风向排出受扰动的气流。出风口设有粗孔过滤网,避免待测物及其附件随气流进入离心风机。出风口与后序部件之间用圆形法兰进行连接,结合面安装有密封垫,避免漏气。
2.5测试区
测试区位于测试段洞体的中段位置,开有风压传感器、风速传感器、支架、电缆等设施的进出通道口,开口处均采用密封结构,避免气流。测试区内待测物中的支架高度、风轮轴外伸尺寸、偏航回转半径等参数根据叶片长度、边界层厚度等用户数据计算获得。待测物中的水平轴风力机采用三叶片、上风向的典型布局设置(垂直轴无需考虑该问题)。支架采用高刚度设计以保证测试数据的准确性,支架材料厚度根据风力机在风速条件下的风推力载荷、设备重力载荷及工况条件计算获得。
2.6偏航调节机构
偏航调节结构由减速电机提供动力,并用蜗轮蜗杆机构进行偏航动力传动。根据蜗轮蜗杆的自锁特性,以保证风力机朝向锁定,而不受到风载荷影响而偏航角度偏差。同时,蜗轮蜗杆机构具有较高减速比,通过电机减速和蜗轮蜗杆减速的两级减速,使偏航角度误差得到进一步减小。
2.7控制系统
控制系统用于控制风力机的偏航角度、叶片桨距角和风轮轴恒速转动,从而实现风力机在测试过程中按照用户指定工况进行“功率-风速”测试。此外,为了保证测试段及其内部附属物的安全,设置急停控制开关。在超速、碰撞、缠绕等情况发生前,实现安全停机。
2.8监控系统
监控系统用于实时采集待测试风力机的运动特性、功率特性和环境条件,主要包括测功电机、绝对值编码器、风速传感器、风压传感器、温湿度传感器等末端传感器,向监控系统软件实时传送监测和反馈信号。同时,监控系统可以按照时序记录、存储监控数据,并按照用户要求输出不同工况条件下的“功率-风速”曲线,并可捕捉和保存曲线。
2.9可拆卸风力机支架
可拆卸支架的功能主要包括:
(1)支撑水平轴风力机或垂直轴风力机;
(2)将偏航驱动力矩传递给水平轴风力机;
(3)将垂直轴风力机捕获的风功率传递给测功电机。为了尽量减少支架所产生的风阻和对气流的干扰,传动轴安装在支架体的内部,动力装置和执行机构均放置于洞体之外。

图3可拆卸风力机支架
三、平台功能
3.1基本功率-风速曲线测试功能
用户在0~25m/s范围内调节测试段内风力机前方来流风速,在特定攻角条件下对上风向风力机是施加纵风载荷,形成推力载荷和升力。通过测功电机实时测量风力机轴的转速、转矩和所捕获的功率。在监控系统实时显示风力机输出功率与风速之间的关系曲线和数据变化,保存所测数据。该测试功能适用于水平轴风力机和垂直轴风力机。
3.2水平轴风力机在不同偏航角下的功率曲线测试功能
用户通过控制系统调节风力机偏航角度,从而使风力机轴线与风向之间形成特定夹角。用户在0-25m/s范围内调节测试段内来流风速,在特定攻角条件下对上风向风力机是施加纵向和横向风载荷,通过测功电机实时测量风力机轴的转速、转矩和所捕获的功率。在监控系统实时显示风力机输出功率与风速之间的关系曲线和数据变化,形成“功率-风速”的多偏航角数据视图,最后保存所测数据。该测试功能仅适用于水平轴风力机。
3.3水平轴风力机在不同变桨角度下的功率曲线测试功能
用户通过控制系统实时调节风力机叶片变桨角度,从而改变风力机叶片的攻角。用户在0-25m/s范围内调节测试段内来流风速,在不同攻角条件下对上风向风力机是施加纵向载荷,形成推力载荷和风力机升力。通过测功电机实时测量风力机轴的转速、转矩和所捕获的功率。在监控系统实时显示风力机输出功率与风速之间的关系曲线和数据变化,形成“功率-风速”的不同叶片攻角下的数据视图,最后保存所测数据。
四、参数配置
4.1总体配置和参数
表1总体参数
序号 | 名称 | 参数 | 备注 |
1 | 测试段直径 | d=780mm | 考虑现有设备直径 |
2 | 法兰分布圆 | 现场实测 | 螺栓规格和数量:现场测量 |
3 | 测试段长度 | 1500mm | 考虑偏航和风速稳定 |
4 | 管壁厚度 | 10mm | 考虑支撑刚度 |
5 | 法兰厚度 | 20mm | 考虑连接强度 |
6 | 整流格栅 | 14×14 | 水平径向方向×竖直径向方向 |
7 | 测功电机 | 磁粉制动 | 额定转矩:5Nm;容量功率:800W |
8 | 角度测量 | 绝对值编码器 | 0~360° |
9 | 风速测量 | 管道风速变送器 | 1套,0-30m/s |
10 | 风压测量 | 风压气压变送器 | 1套,-100Pa- +5000Pa |
11 | 温湿度测量 | 温度湿度变速器 | -40°C-+80°C,0%RH-99.9%RH |
12 | 主材材料 | 亚克力板材 | 考虑观测方便 |
4.2关键零部件参数
(1)风速变速器:
型号:QVM62.1-HE
测量范围:0~30m/s
精度:0-15m/s(±0.2m/s+3%*测量值)
信号输出:电流4~20mA
485输出型:标准ModBus-RTU
供电电源:20~28VDC
工作温度:变送器:-5℃~+45℃
(2)风压变速器:
型号:IN66 HVAC
量程:-4000Pa+4000Pa
电源:24V DC
输出:4-40mA,
配件材质:ABS
精度:±1%FS
环境:温度-40℃-+60°C,湿度85%
(3)温湿度变送器:
型号:IN95
直流供电:20-28 DCV
测量范围:温度-40℃~+125℃;湿度0~99.9%RH
测量精度:±0.2℃(10-35℃);±1.5%RH(10-35℃)
输出信号:电流型4-20mA;RS485;标准Modbus-RTU协议
工作温度:变送器-20~+60℃;探头-40~+125℃
(4)磁粉制动器:
型号:ZKG10YN
额定转矩:1Nm
电流:0.42A
滑差功率:10W
最 高转速:1800r/min
精度:0.1%
(5)绝对值编码器:
型号:S10CA5
精度:±0.1°
最 大脉冲:5000
输出信号:RS485/RS232/ModBus
工作电流:0~50mA
工作电压:4.5~30V DC
工作温度:-40-+85°C
储存温度:-40-+85°C
湿度:98%(无凝露)

